Obra Nueva » Bungalow en planta baja » Torr

Torrevieja · Alicante Bungalow en planta baja | Obra Nueva NB-66756

Precio 259.000€

Torrevieja · Alicante Bungalow en planta baja | Obra Nueva NB-66756

Descripción


Características

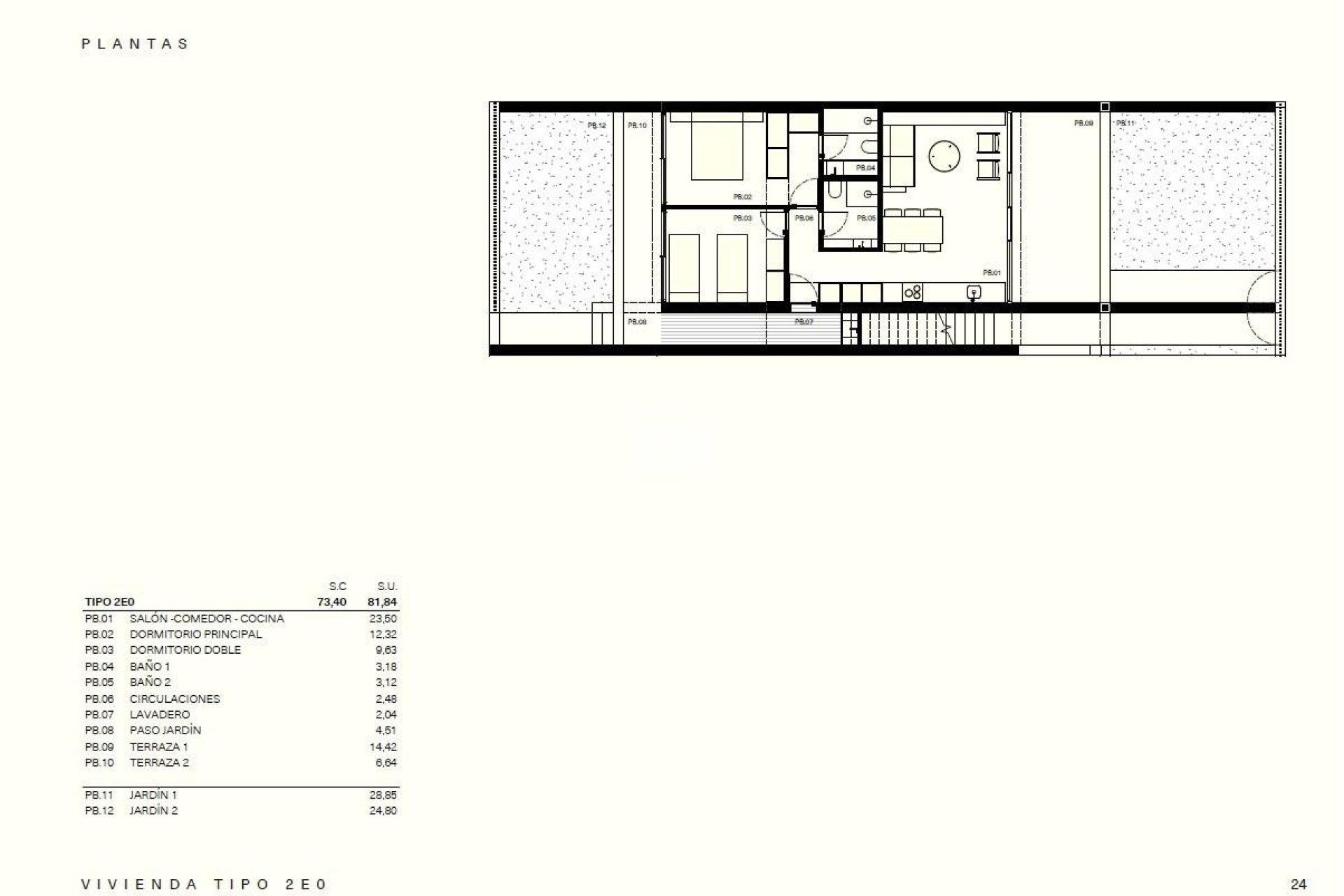
Habitaciones: 2
Baños: 2
Construidos: 81m2
Parcela: 53m2
Piscina: Si
Jardín
Piscina comunitaria
Cerrado
Número de plazas de aparcamiento: 1
Cerca de escuelas
Cerca del centro comercial
Ubicación: Costera, Urbanización
Almacenamiento / Trastero
Aire acondicionado pre-installacion
Habitaciones con cama doble: 2
Cerca de golf / Propiedad en complejo de golf
Sótano / Subsol
Terraza: 20 m².
Espacio
Playa: 3 500 metros
Useable Build Space: 73 Msq.

Localización

Lars Geraerts
Lars Geraerts
Agente Inmobiliario email@europe-homes.com +34 604 420 154

Pedir información

Responsable del tratamiento: Martinez & Rakosi, SL, Finalidad del tratamiento: Gestión y control de los servicios ofrecidos a través de la página Web de Servicios inmobiliarios, Envío de información a traves de newsletter y otros, Legitimación: Por consentimiento, Destinatarios: No se cederan los datos, salvo para elaborar contabilidad, Derechos de las personas interesadas: Acceder, rectificar y suprimir los datos, solicitar la portabilidad de los mismos, oponerse altratamiento y solicitar la limitación de éste, Procedencia de los datos: El Propio interesado, Información Adicional: Puede consultarse la información adicional y detallada sobre protección de datos Aquí.


WhatsApp