Obra Nueva » Semidetached » Fuente Álamo &r

Fuente Álamo · Murcia Semidetached | Obra Nueva NB-94723

Precio 242.000€

Fuente Álamo · Murcia Semidetached | Obra Nueva NB-94723

Descripción


Características

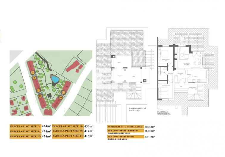
Habitaciones: 2
Baños: 1
Construidos: 175m2
Parcela: 430m2
Aire acondicionado pre-installacion
Habitaciones con cama doble: 2
Cerca de golf / Propiedad en complejo de golf
Llave en mano
Ubicación: Costera, Rural, Urbanización
Terrace: 45 Msq.
Playa: 7500 Meters
Espacio útil construible: 148 m².
Jardín
Cerrado
Aparcamiento - Espacio
Número de plazas de aparcamiento: 1
Almacenamiento / Trastero

Localización

Lars Geraerts
Lars Geraerts
Agente Inmobiliario email@europe-homes.com +34 604 420 154

Pedir información

Responsable del tratamiento: Martinez & Rakosi, SL, Finalidad del tratamiento: Gestión y control de los servicios ofrecidos a través de la página Web de Servicios inmobiliarios, Envío de información a traves de newsletter y otros, Legitimación: Por consentimiento, Destinatarios: No se cederan los datos, salvo para elaborar contabilidad, Derechos de las personas interesadas: Acceder, rectificar y suprimir los datos, solicitar la portabilidad de los mismos, oponerse altratamiento y solicitar la limitación de éste, Procedencia de los datos: El Propio interesado, Información Adicional: Puede consultarse la información adicional y detallada sobre protección de datos Aquí.


WhatsApp