Construction Neuve » villa » Polop »

Polop · Alicante villa | Construction Neuve NB-13427

Prix 970.000€

Polop · Alicante villa | Construction Neuve NB-13427

La description


Les caractéristiques

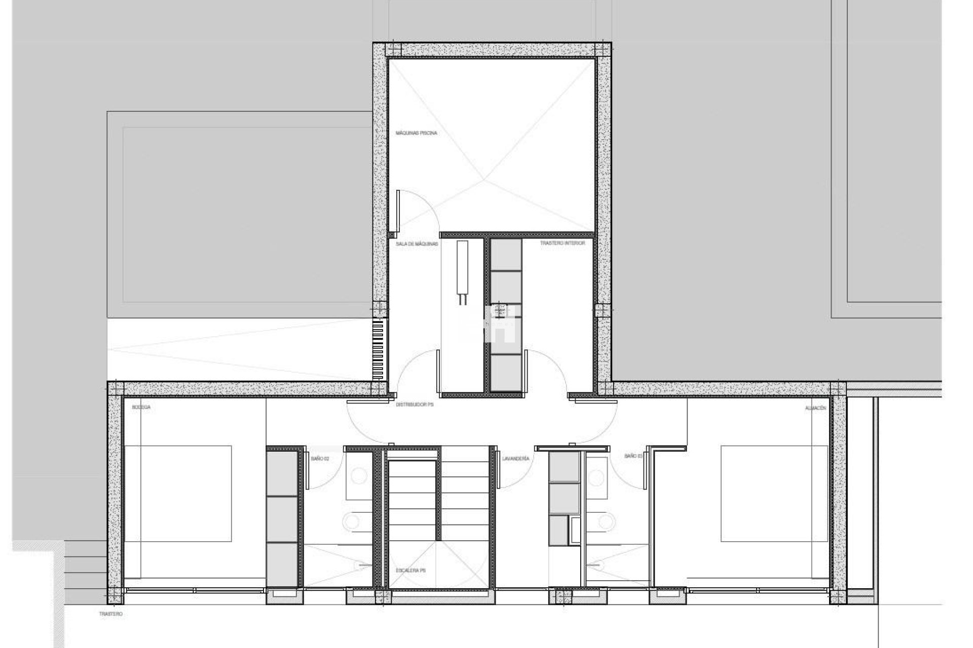
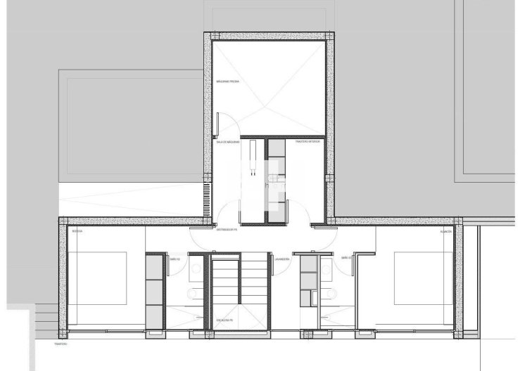
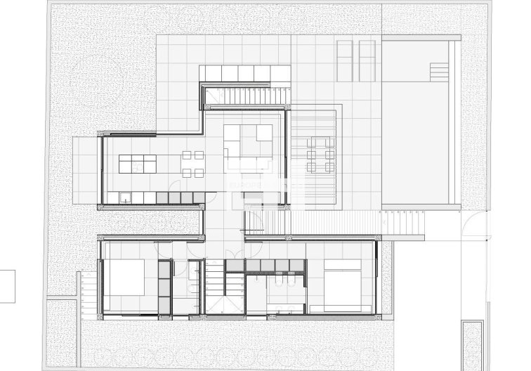
Chambres: 4
Salles de bain: 4
Construit: 200m2
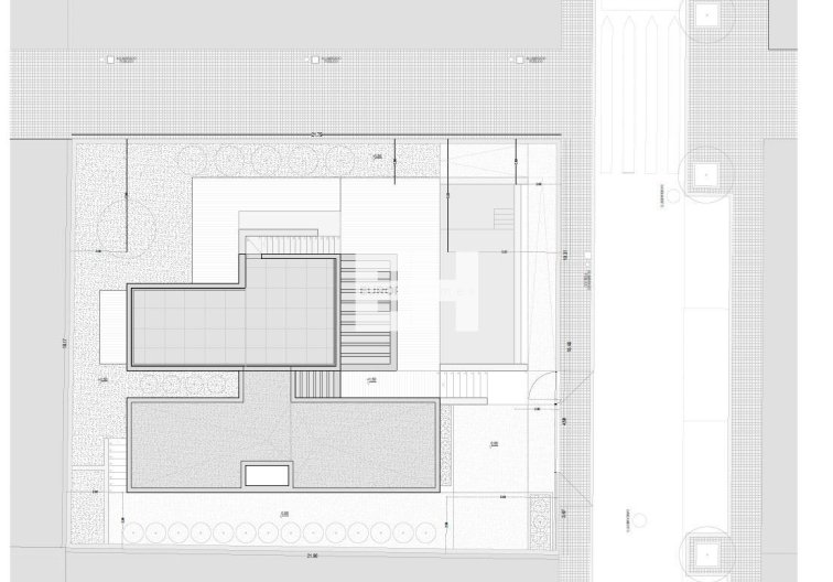
Intrigue: 400m2
Piscine: Oui
Jardin
Piscine privée
Clôturé
Nombre de places de stationnement : 1
Près des écoles
Près du centre commercial
Stockage / Trastero
Chambres doubles : 4
Surface utile : 100 m².
Views: Sea
Buanderie
Solarium: Oui
Près des arbres
Sous-construction / Sous-sol
Espace
Clé en main
Salle de jeux
Plage: 8000 Meters
Emplacement : Rural, Montagne, Urbanisation
Terrace: 66 Msq.

Emplacement

Demander information

Responsable del tratamiento: Martinez & Rakosi, SL, Finalidad del tratamiento: Gestión y control de los servicios ofrecidos a través de la página Web de Servicios inmobiliarios, Envío de información a traves de newsletter y otros, Legitimación: Por consentimiento, Destinatarios: No se cederan los datos, salvo para elaborar contabilidad, Derechos de las personas interesadas: Acceder, rectificar y suprimir los datos, solicitar la portabilidad de los mismos, oponerse altratamiento y solicitar la limitación de éste, Procedencia de los datos: El Propio interesado, Información Adicional: Puede consultarse la información adicional y detallada sobre protección de datos Aquí.


WhatsApp