Villas de luxe neuves en première ligne de plage à Puerto de Mazarrón
Une vie exclusive en bord de mer à El Alamillo
Découvrez un nouveau projet immobilier unique composé de 11 villas indépendantes de luxe situées à Puerto de Mazarrón, dans le prestigieux quartier d'El Alamillo, l'une des destinations les plus prisées de la Costa Cálida. Cette communauté fermée offre un accès direct à la plage et à la promenade, alliant à la perfection confort, exclusivité et style de vie méditerranéen.
Villas spacieuses avec piscine privée et vue sur la mer
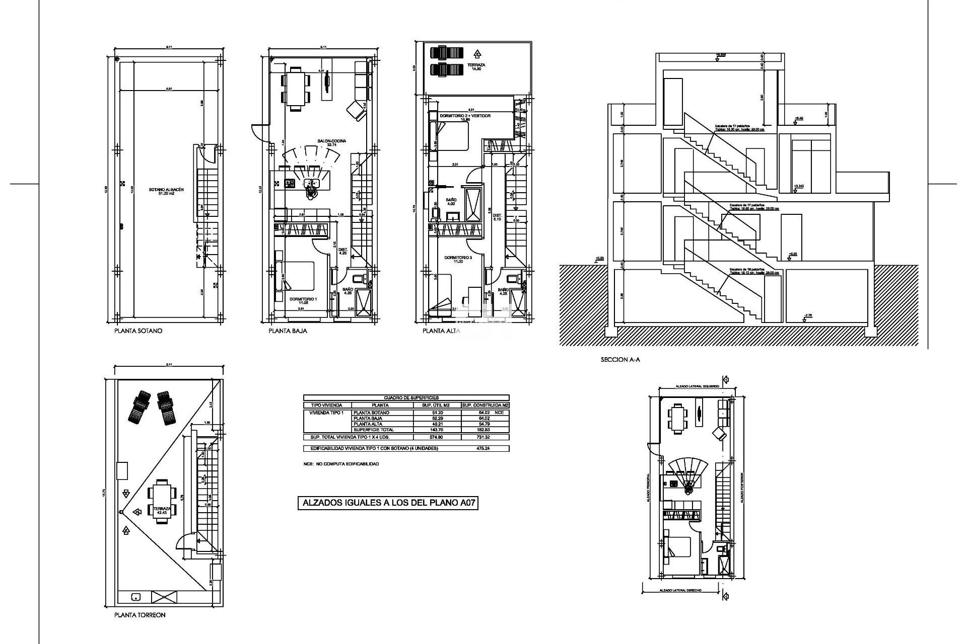
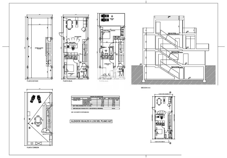
Chaque villa est construite sur un terrain de 259 m² minimum et conçue dans un style architectural moderne sur quatre niveaux : sous-sol, rez-de-chaussée, premier étage et solarium privé. Les maisons disposent de 3 grandes chambres et de 3 salles de bains (dont une en suite), ce qui les rend idéales comme résidences permanentes ou comme maisons de vacances.
Les principales caractéristiques sont les suivantes :
Piscine privée de 8 x 3,5 m
Solarium sur le toit avec jacuzzi de 2 x 2 m, cuisine d'été et vue sur la mer
Sous-sol entièrement aménagé de 51,20 m² avec installation électrique et alimentation en eau, parfait pour un appartement d'amis ou un espace de rangement.
Cuisines entièrement équipées avec appareils électroménagers
Salles de bains complètes avec finitions de haute qualité
Climatisation centralisée (chaud/froid)
Système d'eau chaude aérothermique
Cuisine d'été extérieure près de la piscine
Pré-installation pour la recharge de voitures électriques
Emplacement privilégié sur la Costa Cálida
El Alamillo, à Puerto de Mazarrón, est connu pour son atmosphère balnéaire détendue, ses plages de sable et ses excellents services. Les villas sont situées à quelques pas de la promenade, offrant un accès quotidien au style de vie méditerranéen.
Distances vers les principaux points d'intérêt :
Centre-ville de Mazarrón : 4 km
Carthagène : 35 km
Ville de Murcie : 70 km
Aéroport international de Murcie (Corvera) : 40 km
Aéroport d'Alicante : 135 km
Parcours de golf (Camposol, Hacienda del Álamo et autres) : 20-30 km
Marina et zone portuaire de Mazarrón : 2 km
Livraison et opportunité d'investissement
Avec une livraison prévue pour l'été 2026, ce projet représente une occasion unique d'acquérir une villa en première ligne de plage dans un emplacement privilégié, avec un fort potentiel locatif et une valeur à long terme.
Assurez-vous dès aujourd'hui la villa de vos rêves
Découvrez l'équilibre parfait entre design moderne, confort et beauté de la mer Méditerranée. Ne manquez pas cette occasion rare de vivre directement sur la plage à Puerto de Mazarrón.
Contactez-nous dès aujourd'hui pour planifier une visite et réserver votre nouvelle villa de luxe en bord de mer.
1036